日期:2016-07-14 點擊: 關鍵詞:企業無線網絡覆蓋中無線AP部署注意事項
企業無線網絡覆蓋中無線AP部署考慮因素:無線AP覆蓋面積、無線AP覆蓋范圍、無線AP數量確定、各種建筑材料對無線訊號的影響、無線AP安裝位置選擇、無線AP頻率規劃、無線AP間漫游、無線AP功率控制等因素,以下是詳細介紹:

1.1 無線AP覆蓋面積:
室內容許最大覆蓋距離為35~100米;
室外容許最大距離100~400米。
1.2 無線AP覆蓋范圍:
2.4G電磁波對于各種建筑材質的穿透損耗的經驗值如下:
A.水泥墻(15~25cm): 衰減10~12dB
B.木板墻(5~10cm): 衰減5~6dB
C.玻璃窗(3~5cm): 衰減5~7dB
1.3 各種建筑材料對無線訊號的影響如下:
當無線AP與終端隔一座水泥墻時, AP 的可傳送覆蓋距離約剩下< 5米 有效距離;
當無線AP與終端中間隔一座木板墻時, AP 的傳送距離約剩下< 15米 有效距離;
當無線AP與終端中間隔一座玻璃墻時, AP 的傳送距離約剩下< 15米 有效距離。
1.4 無線AP數量確定:
對于面積小于150平方米的普通開放空間,如酒店公共休息區,小酒吧,咖啡廳,會議室,西餐廳等區域,預計用戶數量不超過30個時,每個場所放置一個無線AP即可滿足需求;
當空間較大,將以安裝多個無線AP來滿足無線覆蓋需求;
當容量需求較大,即無線AP的覆蓋區域內用戶數目過多時,需在同一空間放置多個無線AP以增加容量;
1.5 無線AP安裝位置選擇:
單個房間中安裝一個無線AP,盡量把無線AP安放在大廳的中央位置,最好選擇放置于大廳的天花板上若安裝兩個無線AP,可將其放置在大廳的兩個對角上。
1.6 無線AP頻率規劃:
在理論上,要求相鄰頻點的隔離度>=35db。
根據經驗值,當相鄰無線AP設定相同頻點時, 要求間隔25米以上;當相鄰無線AP設定相鄰頻點時, 要求無線AP間隔16米以上;當無線AP設定相隔頻點時, 要求間隔12米以上。
要維持一個質量較好的WLAN,需要考慮企業無線網絡覆蓋范圍內用戶數量,單個無線AP的聯機終端用戶數不應超過30個。
1.7 無線AP間漫游:
無線AP每隔100ms發送一次探測信號,用戶端可據此判斷網絡連接質量,然后決定接入哪一個無線AP。當終端在多個無線AP間的漫游時,由新的服務無線AP通過有線的形式通知原服務AP,已建立新的連接。
無線AP的漫游協議不包含在802.11中,而IAPP(Inter access point protocol)很有可能成為標準的漫游協議。
1.8 無線AP功率控制:
通過對無線AP輸出功率的調整,可以控制無線網絡覆蓋范圍內的用戶數量,以保證企業無線網絡質量。
無線AP產品出廠時功率統一,當用戶需要更改功率時,可下載相應軟件,對輸出功率進行調整。
在當前WLAN的建設初期,主要滿足企業無線網絡覆蓋需求,較少對無線AP功率進行控制。
1.9 外界干擾:
干擾源的種類;
微波爐;
防盜設施(商場門檢);
其它大功率的電子設備;
所以AP應該遠離干擾源1—2米。
1.10 總結:
AP規劃應遵循以下原則:
1、無線網絡覆蓋原則
首選保證信號的無線網絡覆蓋范圍能夠用戶要求;
2、易安裝原則
規劃選址應滿足施工要求;
3、了解無線ap覆蓋半徑的技術參數;
4、無線ap固定在沒有遮擋的廠房上方可以獲得更好地信號效果,如天花板、立柱;
5、無線ap要選擇工業級的,能耐高溫、最好也能防潮;
6、建議采購通過網線取電的無線ap,這樣每一個無線ap就不需要格外的變壓器電源;
7、一個區域使用一個有線交換機搭載n個無線ap;
8、相鄰的ap無線信道要設置不同的,IP段可以相同
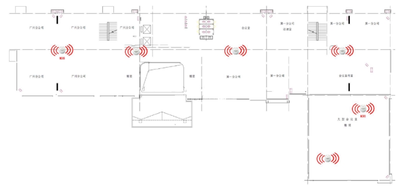
企業無線網絡覆蓋平面示意圖

圖1 企業無線網絡覆蓋架構圖

圖2 一層無線網絡覆蓋平面圖

圖3 二層無線網絡覆蓋平面圖
以上是企業無線網絡覆蓋中無線AP部署注意事項,如果您有相關需求可以咨詢在線客服了解更多相關內容,或致電400-0806-056,云爍服務 - 竭誠為您服務。